Опис
Простора трикімнатна квартира 141 м2 у будинку преміум сегменту
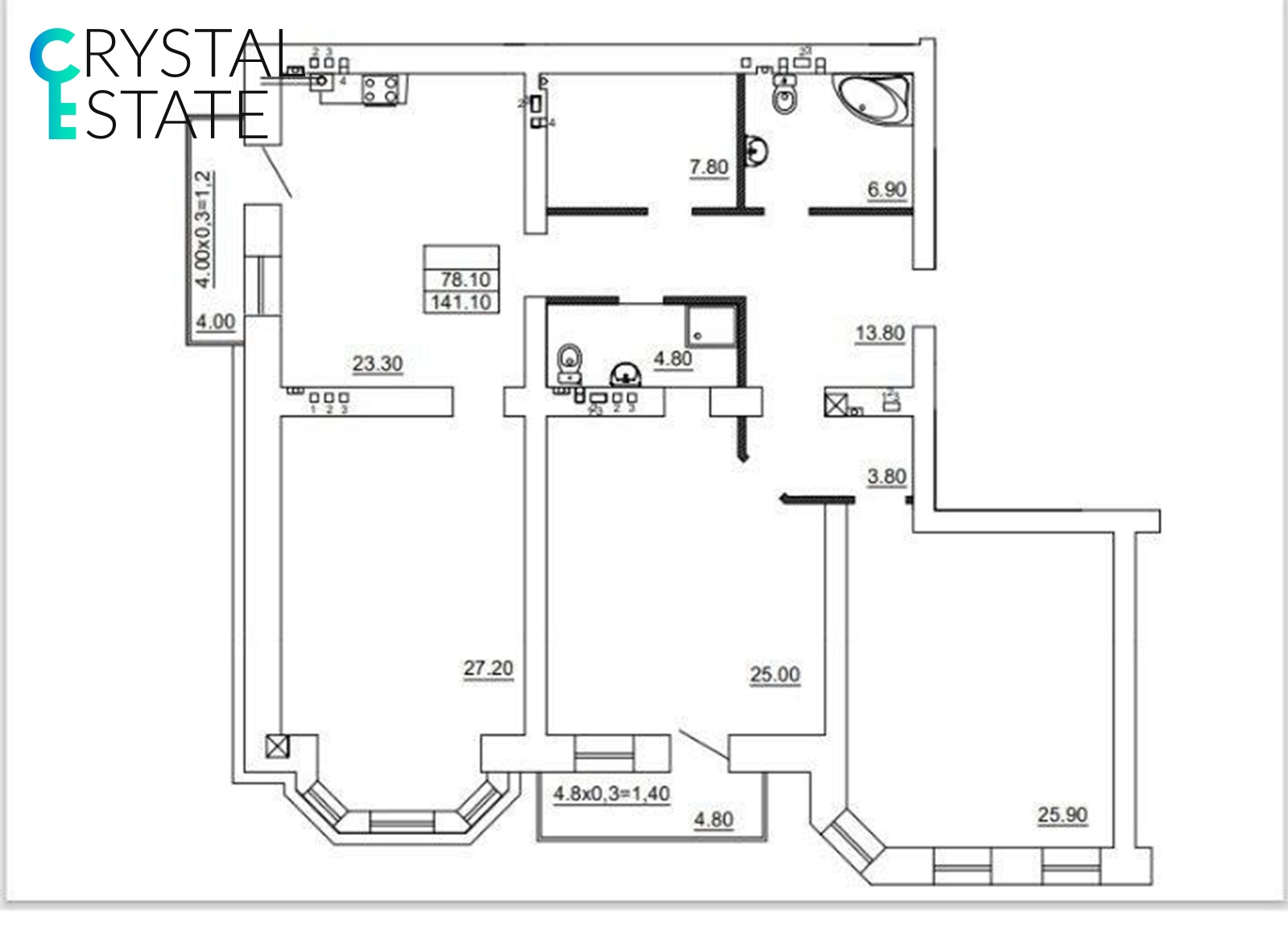
Світла та затишна квартира розташована на комфортному 4 поверсі малоквартирного будинку преміум класу. Вдале планування передбачає три окремі просторі кімнати з великими вікнами, що наповнюють простір природним світлом. Вхідна група 14 м2, кухня-студія 23 м2 з виходом на балкон. Для зручності – три санвузли.
Висота стелі — 3 метри, стан квартири — без ремонту, що дозволяє реалізувати власний дизайн-проєкт. Встановлено індивідуальний двоконтурний газовий котел.
Будинок побудований із ефективної червоної цегли (товщина зовнішніх стін 70 см), має горизонтальне розведення труб, дві лінії електровводу — світло є завжди. Ліфт SHINDLER (Австрія), резервні баки з водою на 2–3 доби.
Хол оздоблений декоративною штукатуркою у вигляді карти світу, підлога та сходи з натурального граніту. Цілодобова охорона, система відеоспостереження, доглянута територія.
Будинок розташований у тихій, історичній частині міста, всього за 15 хвилин від Дерибасівської.
Поруч — Старобазарний, ім. Вітте, Прохорівський, Тираспольський, Преображенський сквери.
ID 213212880
Трикімнатна квартира, зданий будинок, преміум сегмент, АГВ, Центр
Опис
Простора трикімнатна квартира 141 м2 у будинку преміум сегменту
Світла та затишна квартира розташована на комфортному 4 поверсі малоквартирного будинку преміум класу. Вдале планування передбачає три окремі просторі кімнати з великими вікнами, що наповнюють простір природним світлом. Вхідна група 14 м2, кухня-студія 23 м2 з виходом на балкон. Для зручності – три санвузли.
Висота стелі — 3 метри, стан квартири — без ремонту, що дозволяє реалізувати власний дизайн-проєкт. Встановлено індивідуальний двоконтурний газовий котел.
Будинок побудований із ефективної червоної цегли (товщина зовнішніх стін 70 см), має горизонтальне розведення труб, дві лінії електровводу — світло є завжди. Ліфт SHINDLER (Австрія), резервні баки з водою на 2–3 доби.
Хол оздоблений декоративною штукатуркою у вигляді карти світу, підлога та сходи з натурального граніту. Цілодобова охорона, система відеоспостереження, доглянута територія.
Будинок розташований у тихій, історичній частині міста, всього за 15 хвилин від Дерибасівської.
Поруч — Старобазарний, ім. Вітте, Прохорівський, Тираспольський, Преображенський сквери.
ID 213212880







